Double floor house plan suitable to 2.5 cent plot size
Everyone searching for small plot house plans. Today homezonline presents 2.5 cent plot double floor house plan for free of cost. It can be construct in small plot area of 2.5 cents (101.175 SQM). Built up area of this home width area is 14.05 meter area and length is 5.42 meter.You can make this home to any face according to your plot size. this double floor house area is 1366 sq ft. First floor area is 845 sq ft and second floor area is 516
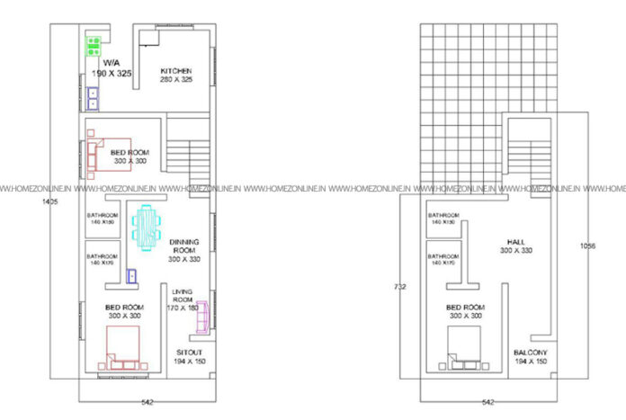
This double floor home plan sit out area is 184 * 150 and situated at left corner of home . Included small living, area is 170 * 150 and a better dining, area is 300 * 350 . Two bedrooms included in ground floor with good facilities and included attached baths. First bed room, area is 300 * 300 toilet ,area is 140 * 170 , second one area is also 300 * 300 toilet, area is 140 * 150 . Also this modern house plan included kitchen , entry to kitchen is through under staircase. Also work area has done on this limited place , the engineer is showing his designing ability on this plan
In first floor included balcony , area is 184 * 150 , hall area is 300*330 . In first floor we can see a extra common toilet , and single bed with attached bath , bed area 300 * 300 . Remain place as open terrace . Finally it’s modern trending home plan with new needs. This plan provided by D-Arc builders and engineers, to get 3D design contact us on our mobile no.
Additional Details
| Ground Floor | 7. Store |
| 1. Sit out | 8. Work area |
| 2. Living | First Floor |
| 3. Dining | 1. 1 Bed attached |
| 4. 2 bed 2 attached | 2. Common toilet |
| 5. Kitchen | Design ID– HMZF8122 |




